Platinen-Design und Fertigstellung |
Die originale Sicherheitsplatine |
Erneuerung einer „SUVA-Relaisplatine“ als erster Platinenauftrag |
Projekt fertig kontrolliert und ab die Post |
V 19.02.10 |
Eine solche Sicherheitsplatine findet Verwendung in Arbeitshebebühnen, bei denen die Unmöglichkeit eines Unfalls durch Fehlmanipulation an erster Stelle steht. In den neueren Modellen dieser Arbeitsbühnen basiert praktisch die ganze Steuerung auf programmierbaren Steuerungen, jedoch sind noch viele ältere Maschinen in Betrieb, bei denen eben diese Relaiskarten regelmässig geprüft und allenfalls ausgetauscht oder repariert werden müssen. Da es inzwischen die Sicherheitsrelais auf der ursprünglichen Platine nirgends mehr zu bestellen gibt, wurde ich durch meinen Onkel von SkyAccess AG beauftragt, 10 neue Platinen herzustellen, die mit den Anschlüssen zu der alten kompatibel ist. Selbstverständlich hatten die neuen Relais eine komplett andere Anordnung der Kontakte und die Herausforderung, den Print ohne Brückchen zu gestalten, gelang mir nach einigen Skizzen. |
Boardlayout der neuen Ersatz-Relaiskarte |
Der gefräste Prototyp unter einem geätzten Print |
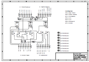
Design und Fertigstellung am Beispiel „Torverriegelungsplatine“ |
Diese Platinen sollen bei kundenspezifischen Arbeitshebebühnen zum Einsatz kommen, welche dazu dienen, ein SUVA-Konformes Aufsteigen und Arbeiten auf Eisenbahnwaggons zu gewährleisten. Sie werden direkt an der Plattform einer Hebebühne montiert und bekommen Signale von Sensoren, welche die Distanz zum Eisenbahnwaggon überprüfen. Das Ausstiegstor zum Wagen hin, welches durch Elektromagnete verriegelt ist, darf nur dann geöffnet werden können, wenn die Plattform nahe genug am Waggon ist. Nur so ist ein gefahrenloses aus- / umsteigen auf das Dach gewährleistet. |
Vom Schaltplan der Platine über das Anordnen der Bauteile zur fertig gelayouteten Ätzvorlage / Bestückungsdruck |
Nach externem Entwickeln lassen der 20 Boards geht’s um das Bestücken, Löten und schliesslich um den Einsatz der fertigen Platine. Nachdem das erste Board erfolgreich im Einsatz getestet wurde, konnten die restlichen Platinen sorglos fertiggestellt werden. |
Universell einsetzbare Relaisplatine |
Ein anderes Produkt, welches für den Einsatz in sicherheitsrelevanten Arbeitshebebühnen erstellt wurde, war eine universell einsetzbare Relaiskarte mit 10 Sicherheitsrelais bei möglichst geringem Platzbedarf. Die Leiterbahnen darauf sind so angeordnet, dass die Platine auch in fünf Einzelteile zerteilt werden könnte, ohne die Funktion einzelner Relaismodule zu beeinträchtigen. Auch ist es möglich, die Relaisspulen durch einfaches Trennen einer Leiterbahn vom gemeinsamen Ground-Potenzial zu trennen. |